O polígono industrial da Lavacolla afectará o Camiño de Santiago, advirten veciños

A parroquia compostelá de Sabugueira, preto de Lavacolla, converteuse no epicentro dunha nova batalla polo uso do territorio na capital galega, onde a necesidade urxente de solo industrial choca frontalmente coas demandas de preservación do medio rural e o patrimonio histórico. 


|

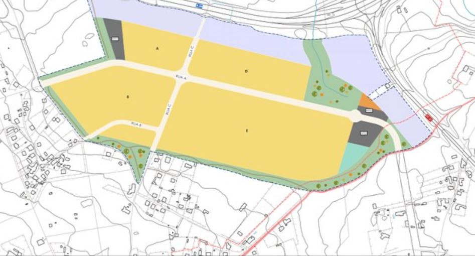
Mapa de la zona para el polu00edgono de Sabugueira
Mapa da zona para o polu00edgono de Sabugueira

 

Centos de veciños, apoiados por organizacións ecoloxistas, decidiron plantar cara á tramitación administrativa dun macropolígono de iniciativa privada que, segundo denuncian, ameaza con alterar para sempre o seu modo de vida. A iniciativa busca paliar a crónica falta de espazo para empresas en Santiago, pero se topou cun muro de alegacións que advirten sobre riscos irreversibles para o sistema hídrico e o Camiño de Santiago. 

 

Televés é unha das compañías que podería estar interesada en instalar no novo Polígono. O conflito estalou definitivamente tras coñecer os detalles do Proxecto de Interese Autonómico (PIA) impulsado pola firma Pontepedroso Real Está S.L., vinculada ao Grupo Televés. 

 

Os residentes da zona, apoiados pola Sociedade Galega de Historia Natural e a Federación Galega de Ecoloxistas en Acción, presentaron unha batería de obxeccións técnicas e ambientais. O seu principal temor radica en que a transformación destas 60 hectáreas de solo rústico e de concentración parcelaria supoña un golpe mortal para a calidade de vida de quen habitan a contorna do aeroporto, que xa soportan unha carga de infraestruturas considerable.

 

A preocupación máis alarmante que esgrimen os afectados ten que ver coa auga, un recurso crave na Galicia rural. Segundo os informes manexados pola oposición veciñal, a localización elixida é unha zona húmida rica en acuíferos de gran pureza. Advirten que os desmontes necesarios para nivelar un terreo con fortes pendentes alterarán o nivel freático e compactarán o solo, destruíndo a rede de drenaxe natural. Isto, aseguran, non só secará mananciais e fontes esenciais para o día a día da aldea, senón que incrementará exponencialmente o risco de inundacións e contaminación no río Sionlla, unha afluente clave do Tambre que abastece á cidade e desemboca na Ría de Muros-Noia.

 

Mapa del plan para el poligono de Sabugueira
Mapa do plan para o poligono de Sabugueira

Posible afectación ao Camiño de Santiago  

Outro dos puntos quentes da controversia é a suposta afectación directa ao Camiño de Santiago Patrimonio da Humanidade. Os veciños alegan que os terreos proxectados para a área industrial lindan co Camiño de Santiago Francés, a arteria espiritual e turística máis importante da comunidade.

 

Os alegantes sosteñen que o proxecto inclúe viarios que atravesarían a ruta de peregrinación, xerando un impacto visual e paisaxístico incompatible coa protección que outorga a #UNESCO. Para os veciños, converter a entrada dos peregrinos a Compostela nun escenario de naves e asfalto non só degradaría a contorna cultural, senón que desvirtuaría a experiencia de miles de camiñantes que percorren os últimos quilómetros cara á Catedral.

 

Desde a perspectiva da conservación da biodiversidade, as acusacións son igualmente graves. As entidades ecoloxistas denuncian que a iniciativa invade hábitats prioritarios protexidos pola Rede Natura 2000. Argumetan que a eliminación de carballeiras, bosques autóctonos e brañas para dar paso ao cemento suporía unha perda irreparable de flora e fauna.

 

Con todo, a moeda ten outra cara que non pode ignorar: a asfixia económica para algunhas empresas compostelás pola falta de espazo. A iniciativa de Pontepedroso Real Está xorde nun contexto onde Santiago de Compostela leva anos perdendo oportunidades de negocio por non ter onde situar novas compañías. O proxecto pretende desenvolver case 300.000 metros cadrados de superficie útil en dúas fases, delimitados pola autovía A-54 e os accesos ao aeroporto. Para o tecido empresarial, esta bolsa de solo é osíxeno nun mercado inmobiliario industrial que se atopa totalmente conxelado.

 

Un sector empresarial desesperado por non poder crecer

A postura do sector produtivo é clara e de total respaldo á creación de novo solo, veña de onde veña. José Fernández Alborés, presidente da Asociación Área Empresarial do Tambre, cualificou a promoción privada en Lavacolla como unha noticia estupenda e absolutamente necesaria. Desde a patronal advirten que a demanda é altísima mentres que a oferta leva case dous anos sendo nula. Esta situación está a provocar que empresas de loxística e do metal estean a dilatar os seus investimentos ou buscando alternativas fose da capital, ante a imposibilidade física de asentar nos polígonos existentes como o de Costa Vella, onde todo o solo está vendid.

 

A tramitación do proxecto atópase actualmente nunha fase determinante, co período de consulta ambiental recentemente finalizado a mediados de novembro. A administración autonómica deberá avaliar agora se o informe ambiental estratéxico é viable fronte ás numerosas alegacións presentadas. 

 

Pola súa banda, o Concello de Santiago mantén unha postura institucional prudente, remitir á planificación urbanística vixente. Fontes municipais sinalaron que o Plan Xeral de Ordenación Municipal (#PXOM) contempla solo industrial suficiente que pode ser desenvolvido tanto por iniciativa pública como privada, sen entrar a valorar en profundidade o conflito social desatado en Sabugueira. Esta distancia administrativa contrasta coa urxencia que transmiten os empresarios, quen lembran que, mesmo no mellor dos escenarios e sendo moi optimistas, as máquinas non entrarán a traballar até dentro de dous anos debido á lenta burocracia.

 

O futuro de Lavacolla xógase agora nos despachos da Xunta de Galicia, que debe ditaminar sobre a viabilidade ambiental do PIA.


 

Sen comentarios

Escribe o teu comentario




He leído y acepto la política de privacidad

No está permitido verter comentarios contrarios a la ley o injuriantes. Nos reservamos el derecho a eliminar los comentarios que consideremos fuera de tema.

Galiciapress
Praza da Quintana, 3; 15704 Santiago de Compostela
Tlf (34)678803735

redaccion@galiciapress.es o direccion@galiciapress.es
RESERVADOS TODOS OS DEREITOS. EDITADO POR POMBA PRESS,S.L.
Aviso legal - Política de Cookies - Política de Privacidade - Configuración de cookies - Consello editorial - Publicidade
Powered by Bigpress
CLABE